De Schilden

De Schilden

De Schilden

Antwerp, BE Antwerpen, BE Antwerpen, BE
76 apartments woningen Wohneinheiten
1.500 m2 office space kantoorruimte Bürofläche
2.000 m2 retail space handelsruimte Einzelhandel
270 underground parking spaces ondergrondse parkeerplaatsen Stellplätze in Tiefgarage
Client: Opdrachtgever: Bauherr:
CIP N.V.
Project start: Start planontwikkeling: Planungsbeginn:
2011
Construction start: Start bouw: Baubeginn:
2014
Completion: Oplevering: Fertigstellung:
2016
Building cost: Bouwsom: Baukosten:
€ 18.300.000
Total GFA: Totaal BVO: Total BGF:
20.000 m2
Related projects: Gerelateerde projecten: Verwandte Projekte:

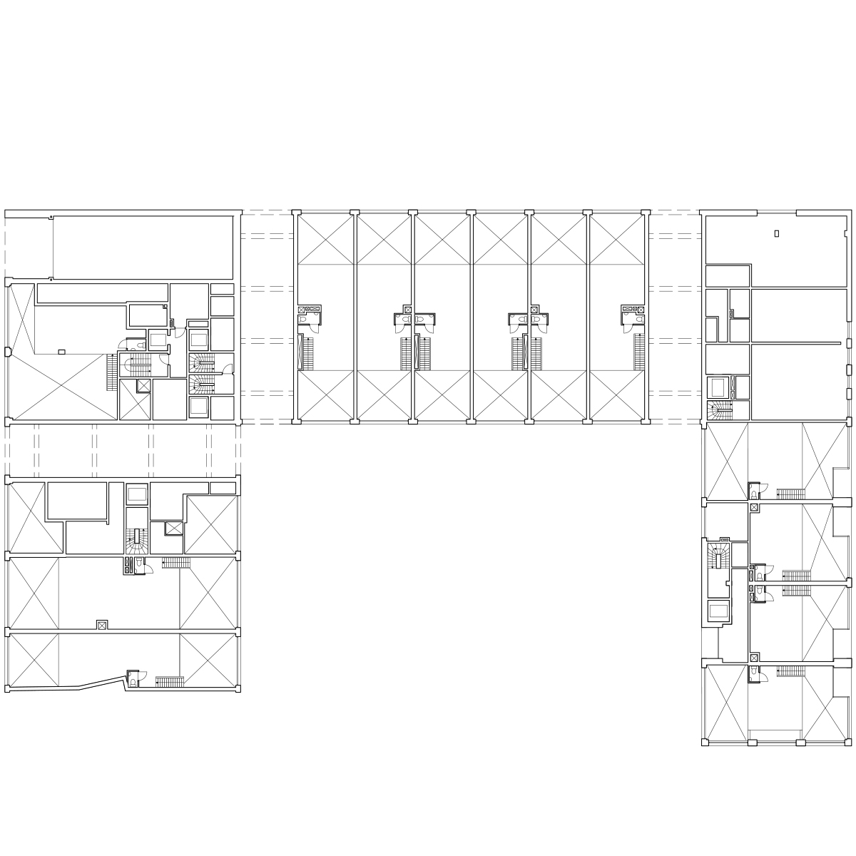
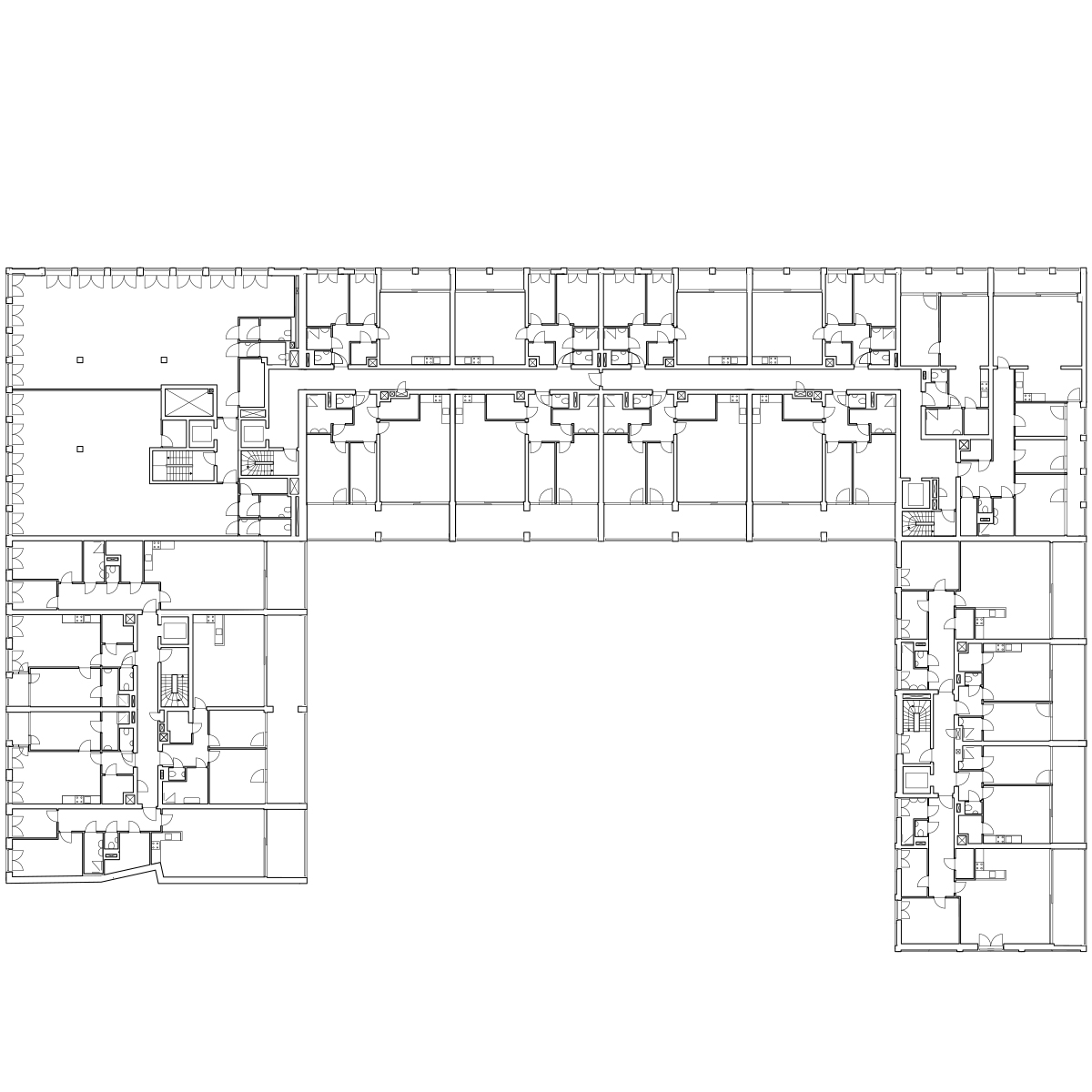
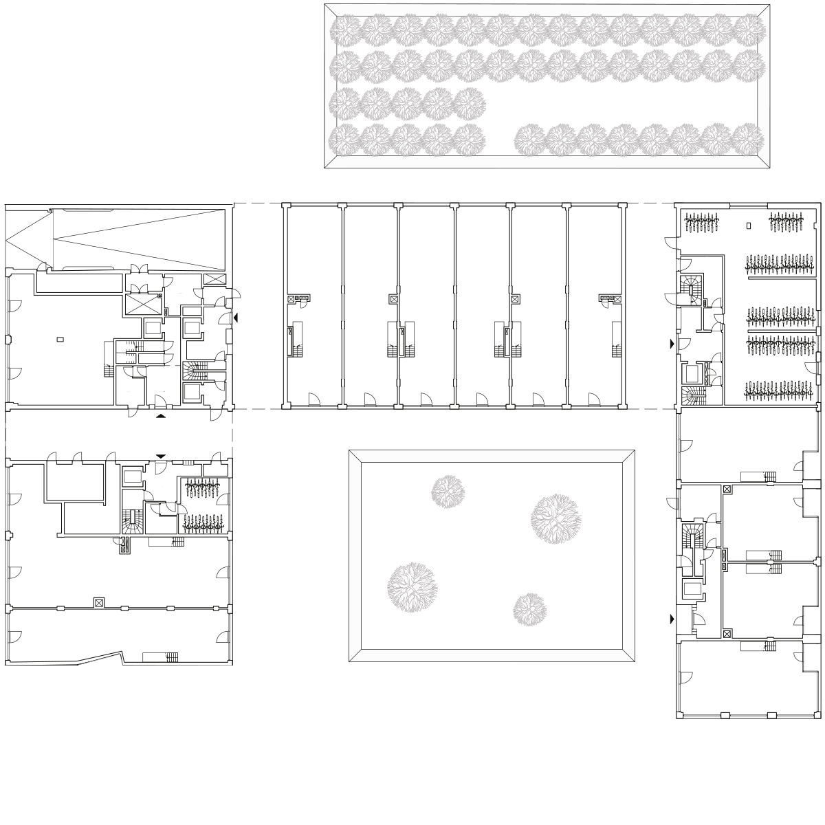
Based on the Falconplein masterplan, Rapp+Rapp planned one of the two large buildings that divide the inner grounds of the building block into four inner courtyards; a C-shaped housing block with a mixed spatial programme and an underground car park. The residential units vary in building depth between 14 and 22 metres and thus display a great diversity of housing typologies. The elevated ground floor contains commercial space with an entresol, while office units are planned in the corners of the building. The façade is presented as a coherent structure and makes no distinction between the front and the back of the building. It is based on a grid in which the different programmatic elements are incorporated. Office spaces are characterised by its wide windows, while the housing units feature a spectrum of different façade openings: generous loggias facing the courtyards and smaller loggias alongside the east façade. The spatial and programmatic diversity gives a certain dynamic to the building, which, thanks to its clear structure, presents itself as a coherent architectural entity.

Op basis van het stedenbouwkundig plan voor het Falconplein ontwierp Rapp+Rapp een van de twee grote gebouwen die het binnenterrein van het plangebied verdelen in vier binnenhoven; een C-vormig huizenblok met een gemengd programma en een ondergrondse parkeergarage. De wooneenheden variëren in bouwdiepte tussen 14 en 22 meter en vertonen zo een grote diversiteit aan woningtypologieën. De verhoogde begane grond herbergt commerciële ruimtes met een entresol, terwijl in de hoeken van het gebouw kantoorunits zijn voorzien. De gevel vormt één doorgaand geheel en maakt geen onderscheid tussen de voor- en achterkant van het gebouw. Het gevelontwerp is gebaseerd op een raster waarin de verschillende programmatische bouwstenen kunnen worden ingevoegd. Kantoorruimtes worden gekenmerkt door brede ramen, terwijl de appartementen een spectrum aan verschillende gevelopeningen hebben: royale loggia’s met uitzicht op de binnenplaatsen en kleinere loggia’s langs de oostgevel. De ruimtelijke en programmatische diversiteit geeft een zekere dynamiek aan het gebouw die zich dankzij de heldere structuur als een samenhangend architectonisch geheel presenteert.

Auf der Grundlage des Masterplans Falconplein plante Rapp+Rapp eine der zwei Großbauten, die das Innere des Plangebiets in vier Innenhöfe unterteilen; einen C-förmigen Häuserblock mit gemischtem Raumprogramm und einer Tiefgarage. Die Wohneinheiten variieren in Bautiefe zwischen 14 und 22 Metern und weisen damit eine große Diversität an Wohnungstypologien auf. Im erhöhten Erdgeschoss befinden sich Geschäftsräume mit Entresol, in den Winkeln des Gebäudes sind Bürounits vorgesehen. Die Fassade versteht sich als einheitliches Ganzes und macht keinen Unterschied zwischen Vorder- und Rückseite des Gebäudes. Sie basiert auf einem Raster, in das die unterschiedlichen programmatischen Bausteine eingefügt werden. Büroräume kennzeichnen sich durch breite Fenster, die Wohnungen weisen ein Spektrum an unterschiedlichen Fassadenöffnungen auf: großzügige Loggien zu den Höfen und kleinere Loggien entlang der Ostfassade. Die räumliche und programmatische Vielfalt verleiht dem Gebäude eine gewisse Dynamik, die sich dank einer klaren Struktur als zusammenhängende architektonische Einheit präsentiert.