Park Brederode main building

Hoofdgebouw Park Brederode

Hauptgebäude Park Brederode

Not realized

Niet gerealiseerd

Nicht ausgeführt

Bloemendaal, NL Bloemendaal, NL Bloemendaal, NL
60 apartments woningen Wohneinheiten
88 underground parking spaces ondergrondse parkeerplaatsen Stellplätze in Tiefgarage
Client: Opdrachtgever: Bauherr:
AM Wonen
Project start: Start planontwikkeling: Planungsbeginn:
2003
Building cost: Bouwsom: Baukosten:
€ 24.000.000
Total GFA: Totaal BVO: Total BGF:
12.500 m2

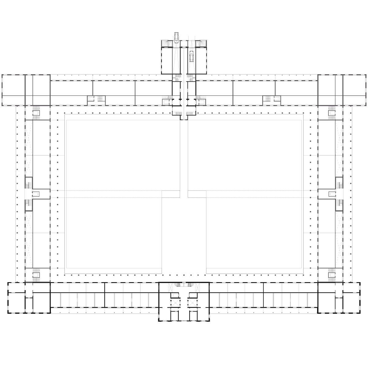
‘Meerenberg’ is a former psychiatric hospital dating from 1849 and is located at the edge of the dunes in Bloemendaal. The main building and the surrounding park were designed by Jan David Zocher Jr, who became famous for his romantic style. The main building is one of the few (pure) square forms ever built in the Netherlands. Through later additions with various pavilions, a hybrid conglomerate was created, in which the main form of the complex is clearly recognizable. In the 1980s, the care function of the Meerenberg complex ceased to exist and the building was abandoned.

Rapp+Rapp worked out a plan for the redevelopment into a residential building that would do right to the monumental status of the building complex. The central theme here was to restore the original shape of the complex by removing some of the later additions. The sides and back sides were given a new identity by the addition of a colonnade and two new volumes that completed the square. The main building, the largest architectural element of the area transformation, became an icon of the entire development.

Meerenberg is een voormalig psychiatrisch ziekenhuis uit 1849 gelegen tegen de rand van de duinen in Bloemendaal. Het hoofdgebouw en het omliggende park werden ontworpen door Jan David Zocher jr., die bekend werd door zijn romantische ‘Engelse’ stijl. Het hoofdgebouw is één van de weinige (pure) carrévormen die ooit in Nederland zijn gebouwd. Door latere aanvullingen met verschillende paviljoens, ontstond een hybride conglomeraat, waarbinnen de hoofdvorm van het complex duidelijk herkenbaar is. In de Jaren ´80 van de vorige eeuw verviel de zorgfunctie van het complex Meerenberg en stond het gebouw lange tijd leeg.

Rapp+Rapp maakte een plan voor de herontwikkeling tot woongebouw, dat recht zou doen aan de monumentale status van het gebouwencomplex. Centraal thema hierbij was om de oorspronkelijke hoofdvorm van het complex te hervinden, door het slopen van enkele van de latere toevoegingen. De zij- en achterkanten kregen een eigen gezicht door toevoeging van een colonnade en twee nieuwe volumes die het carré vervolmaken. Het hoofdgebouw, het grootste bouwkundige element in het gebied, zou het icoon van de gehele gebiedsontwikkeling worden.

Meerenberg, ein ehemaliges psychiatrisches Krankenhaus aus dem Jahr 1849, liegt am Rande der Dünen in Bloemendaal. Das Hauptgebäude und der umgebende Park wurden von Jan David Zocher jr. entworfen, der für seinen romantischen ‘englischen’ Stil bekannt wurde. Das Hauptgebäude ist eine der wenigen (reinen) Karree Formen, die in den Niederlanden gebaut wurden. Spätere Ergänzungen mit einzelnen Pavillons ließen ein hybrides Konglomerat entstehen, in dem die Hauptform der Anlage noch deutlich erkennbar ist. In den 1980er Jahren entfiel die Betreuungsfunktion des Meerenberg-Komplexes und das Gebäude stand lange Zeit leer.

Rapp+Rapp erarbeiteten einen Plan für die Umnutzung zu einem Wohngebäude, das dem Denkmalstatus des Gebäudekomplexes gerecht werden sollte. Zentrales Thema war dabei die Wiederherstellung der ursprünglichen Grundform des Komplexes durch den Abriss einiger der späteren Erweiterungen. Die Längs- und Rückseiten erhielten ein eigenes Gesicht durch den Anbau einer Kolonnade und zweier neuer Volumen, die den Platz abschließen. Das Hauptgebäude, das größte architektonische Element des Gebietes, wurde zur Ikone der gesamten Gebietsentwicklung.