Ligne cultural forum

Cultureel forum Ligne

Kulturforum Ligne

Sittard, NL Sittard, NL Sittard, NL
4.950 m2 library bibliotheek Bibliothek
7.500 m2 commercial space commerciële ruimte Gewerbefläche
6.000 m2 office space kantoorruimte Bürofläche
30 care apartments zorgappartementen Pflege Wohnungen
Client: Opdrachtgever: Bauherr:
3W / Jongen
Project start: Start planontwikkeling: Planungsbeginn:
2009
Construction start: Start bouw: Baubeginn:
2013
Completion: Oplevering: Fertigstellung:
2016
Building cost: Bouwsom: Baukosten:
€ 16.000.000
Total GFA: Totaal BVO: Total BGF:
22.000 m2
In collaboration with: In samenwerking met: In Zusammenarbeit mit:
Awards: Prijzen: Auszeichnungen:
2018 - Fritschy-Stadscultuurprijs Sittard-Geleen 2018 - Fritschy-Stadscultuurprijs Sittard-Geleen 2018 - Fritschy-Stadscultuurprijs Sittard-Geleen

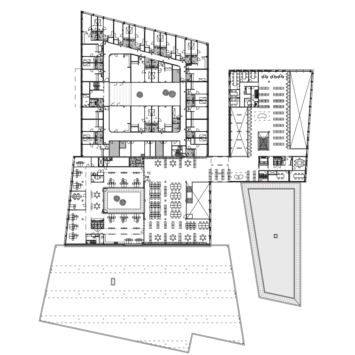
The Ligne cultural forum is located between the railway station and the historic center of Sittard, between the former fields of fire and the ‘Rijksweg’. It consists of two clusters, located on either side of the central ‘Cultural Axis’ from the master plan by Jo Coenen & Co Architects. The north block includes a museum, a movie-theatre, an educational learning centre and part of Zuyd University of Applied Sciences. The south block, designed by Rapp+Rapp, includes commercial spaces and apartments for assisted-living, a daycare centre and a library.

The south block is subdivided into five larger and smaller buildings that gradually stagger down towards the south. It mediates between the large-scale program and the small-scale texture of the historic city center. A narrow shopping street runs between the buildings, connecting the main shopping street of Sittard with the new ‘Cultuurplein’. In a sequence of shifting urban spaces, it offers constantly changing perspectives. The ground and first floor are almost entirely accommodated by commercial space. The housing and day care center are located at the corner of the ‘Rijksweg’ and the ‘Cultural Axis’.

The library has a key position in the project. The public library and the library of the University of Applied Sciences are merged here as equal parts. It manifests itself in various places in the cityscape, both to the outside as to the inside, towards the shopping street. The main volume of the library is located along the former fields of fire and has its entrance at the ‘Cultuurplein’. A second part of the library is located vis-à-vis on the second floor at the ‘Rijksweg’. Both parts are connected by a bridge and have a visual connection to one another and to the shopping street.

Het cultureel forum Ligne ligt tussen het station en het historisch centrum van Sittard, tussen de voormalige schootsvelden en de Rijksweg. Het bestaat uit een tweetal clusters, gelegen aan weerszijden van de centrale culturele as uit het masterplan van Jo Coenen & Co. Het noordblok omvat een museum, een filmhuis, het Educatief Leer Centrum en een deel van de Hogeschool Zuyd. Het zuidblok, ontworpen door Rapp+Rapp, omvat naast commerciële ruimten en zorgappartementen, een dagbestedingscentrum en een bibliotheek.

Het zuidblok is onderverdeeld in vijf grotere en kleinere gebouwen die naar het zuiden toe aftrappen. Het bemiddelt tussen het grootschalige programma en de kleine korrel van de historische binnenstad. Tussen de gebouwen loopt een smalle winkelstraat, die de hoofdwinkelstraat van Sittard verbindt met het nieuwe Cultuurplein. In een sequentie van verspringende stedelijke ruimtes biedt zij steeds veranderende perspectieven. De begane grond en 1e verdieping worden bijna geheel in beslag genomen door commerciële ruimte. Op de hoek van de Rijksweg en de culturele as, bevinden zich de zorgwoningen en het dagbestedingscentrum.

De bibliotheek heeft een sleutelpositie in het ontwerp. De openbare bibliotheek en de bibliotheek van de Hogeschool zijn hier als gelijkwaardige onderdelen samengevoegd. Zij manifesteert zich op diverse plekken, zowel aan de buitenkant, als ook aan de intieme winkelstraat. Het hoofdvolume van de bibliotheek ligt langs de Schootsvelden en heeft zijn entree aan het Cultuurplein. Een tweede deel van de bibliotheek bevindt zich vis-à-vis op de tweede verdieping aan de Rijksweg. Beide delen staan via een brug over de winkelstraat met elkaar in verbinding en hebben een visuele relatie met de straat.

Das Kulturforum Ligne liegt zwischen dem Bahnhof und dem historischen Zentrum von Sittard, in unmittelbarer Nähe der Schussfelder der ehemaligen Festungsstadt. Der Gebäudecluster umfasst zwei Blöcke, die zu beiden Seiten der zentralen Kulturachse aus dem Masterplan von Jo Coenen & Co Architekten angeordnet sind. Der nördliche Teil umfasst ein Museum, ein Filmtheater, ein Lehrzentrum und einen Teil einer Fachhochschule. Der Südliche Teil, ein Entwurf von Rapp+Rapp, umfasst Gewerbeflächen, betreute Wohneinheiten mit einer zugehörigen Tagespflegeeinrichtung und eine Bibliothek.

Der Block gliedert sich in fünf größere und kleinere Gebäude, die nach Süden abfallen. Er vermittelt zwischen dem großflächigen Raumprogramm und der Kleinteiligkeit des historischen Stadtkerns. Zwischen den Gebäuden läuft eine schmale Einkaufsstraße, die die Haupteinkaufsstraße Sittards mit dem neuen Kulturplatz verbindet. In einer Abfolge von versetzten Stadträumen bieten sich ständig wechselnde Perspektiven an. Das Erdgeschoss und das 1. Obergeschoss sind fast vollständig von Gewerbeflächen eingenommen. An der Ecke des Rijksweg und der Kulturachse befinden sich die Pflegeeinrichtungen.

Die Bibliothek hat eine Schlüsselposition im Gesamtentwurf. Die Stadtbibliothek und die Bibliothek der Fachhochschule wurden als gleichwertige Bestandteile zusammengeführt. Die Bibliothek manifestiert sich an verschiedenen Stellen im Stadtbild, nach außen wie nach innen zur intimen Einkaufsstraße. Das Hauptgebäude der Bibliothek grenzt an die ehemaligen Schussfelder und hat ihren Eingang am Kulturplatz. Ein weiterer Teil der Bibliothek befindet sich auf der zweiten Ebene zum Rijksweg. Beide Teile sind über eine Brücke miteinander verbunden und haben einen visuellen Bezug zueinander und zur Straße.