Foyer Bos en Lommer housing

Foyer Bos en Lommer

Foyer Bos en Lommer

Amsterdam, NL Amsterdam, NL Amsterdam, NL
80 apartments woningen Wohneinheiten
Client: Opdrachtgever: Bauherr:
De Principaal
Project start: Start planontwikkeling: Planungsbeginn:
1997
Construction start: Start bouw: Baubeginn:
2001
Completion: Oplevering: Fertigstellung:
2003
Building cost: Bouwsom: Baukosten:
€ 2.900.000
Total GFA: Totaal BVO: Total BGF:
2.900 m2
Awards: Prijzen: Auszeichnungen:
2002 - Zuiderkerkprijs, nomination 2002 - Zuiderkerkprijs, nominatie 2002 - Zuiderkerkprijs, Nominierung

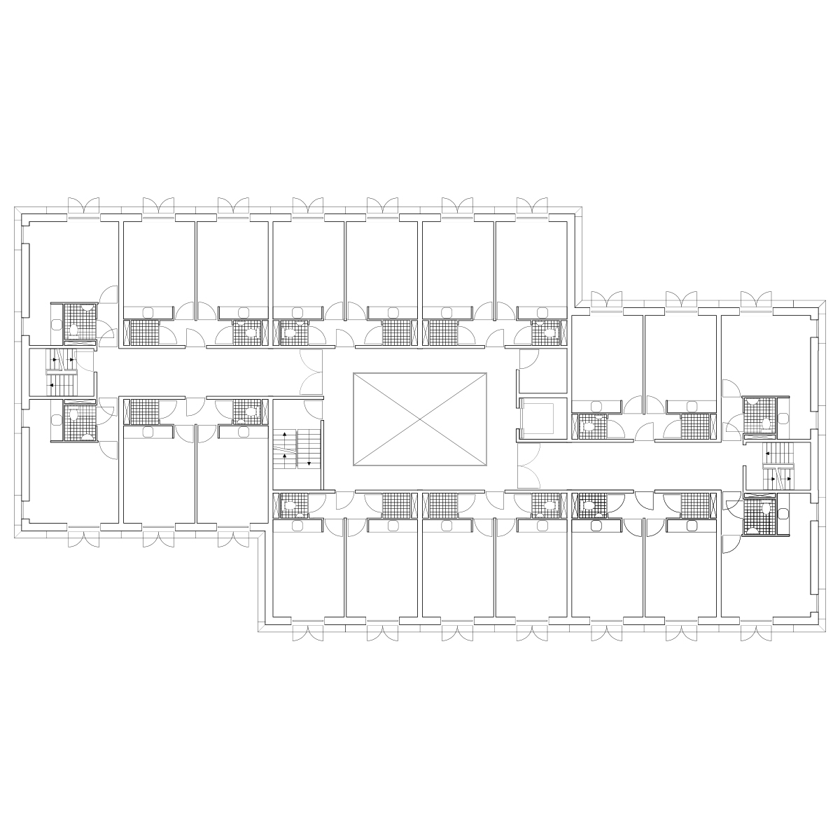
The Foyer Bos en Lommer is located next to the famous Resurrection Church ‘de Kolenkit’ designed by architect M.F. Duintjer in Amsterdam’s ‘Bos en Lommer’ district. The solitary building forms an important urban link to the residential area behind it. The Foyer was set up according to a French model, as temporary, assisted housing for young people. Now its 80 units meet the great demand for short-stay facilities for foreign students within the urban housing market of Amsterdam. The versatility of the building volume, the openness of the façade and the use of travertine, accentuate the special function in the neighborhood. An atrium provides extra daylight in the heart of the building. In 2000 the project was nominated for the Zuiderkerk Prize of the City of Amsterdam, which rewards innovative combinations of housing program and architecture.

De Foyer Bos en Lommer ligt naast de bekende Opstandingskerk ‘de Kolenkit’ van architect M.F. Duintjer in de Amsterdamse wijk Bos en Lommer. Het solitaire gebouw vormt een belangrijke stedenbouwkundige schakel naar de achterliggende woonwijk. De Foyer is opgezet naar Frans voorbeeld, als tijdelijke, begeleide huisvesting voor jongeren. Met een deel van zijn 80 units voorziet het gebouw in de grote behoefte aan short-stay-faciliteiten voor buitenlandse studenten binnen de stedelijke woningmarkt van Amsterdam. De alzijdigheid van het bouwvolume, de openheid van de gevel en de toepassing van travertin als gevelafwerking accentueren de bijzondere functie in de buurt. Een atrium in het hart van het gebouw zorgt voor extra daglicht binnen het gebouw. Het project werd in 2000 genomineerd voor de Zuiderkerkprijs van de gemeente Amsterdam, die vernieuwende combinaties van woonprogramma en architectuur beloont.

Das Foyer Bos en Lommer liegt neben der berühmten Auferstehungskirche „de Kolenkit“ des Architekten M.F. Duintjer im Amsterdamer Stadtteil „Bos en Lommer“. Der Solitärbau formt ein städtebauliches Scharnier zu dem dahinter liegenden Wohnquartier. Das Foyer wurde nach französischem Vorbild für Jugendliche, für den kurzfristigen, betreuten Aufenthalt von bis zu einem Jahr, entwickelt. Mit seinen 80 Wohneinheiten entspricht das Gebäude aktuell der großen Nachfrage nach Short-Stay-Wohnungen für ausländische Studenten auf dem Amsterdamer Wohnungsmarkt. Die Allseitigkeit des Bauvolumens, die Offenheit der Fassade und die Verwendung von Travertin als Fassadenverkleidung betonen die besondere Funktion des Gebäudes in der Nachbarschaft. Ein Atrium sorgt für zusätzliches Tageslicht im Inneren des Gebäudes. Das Projekt wurde im Jahr 2000 für den Zuiderkerk-Preis der Stadt Amsterdam nominiert, mit dem innovative Kombinationen von Wohnprogramm und Architektur ausgezeichnet werden.