City Hall Niel redevelopment

Herontwikkeling Gemeentehuis Niel

Umbau + Erweiterung Gemeindehauses Niel

Niel, BE Niel, BE Niel, BE
1.550 m2 new built nieuwbouw Neubau
520 m2 renovation renovatie Umbau
Client: Opdrachtgever: Bauherr:
Gemeente Niel
Project start: Start planontwikkeling: Planungsbeginn:
2004
Construction start: Start bouw: Baubeginn:
2007
Completion: Oplevering: Fertigstellung:
2009
Building cost: Bouwsom: Baukosten:
€ 2.800.000
Total GFA: Totaal BVO: Total BGF:
2.070 m2

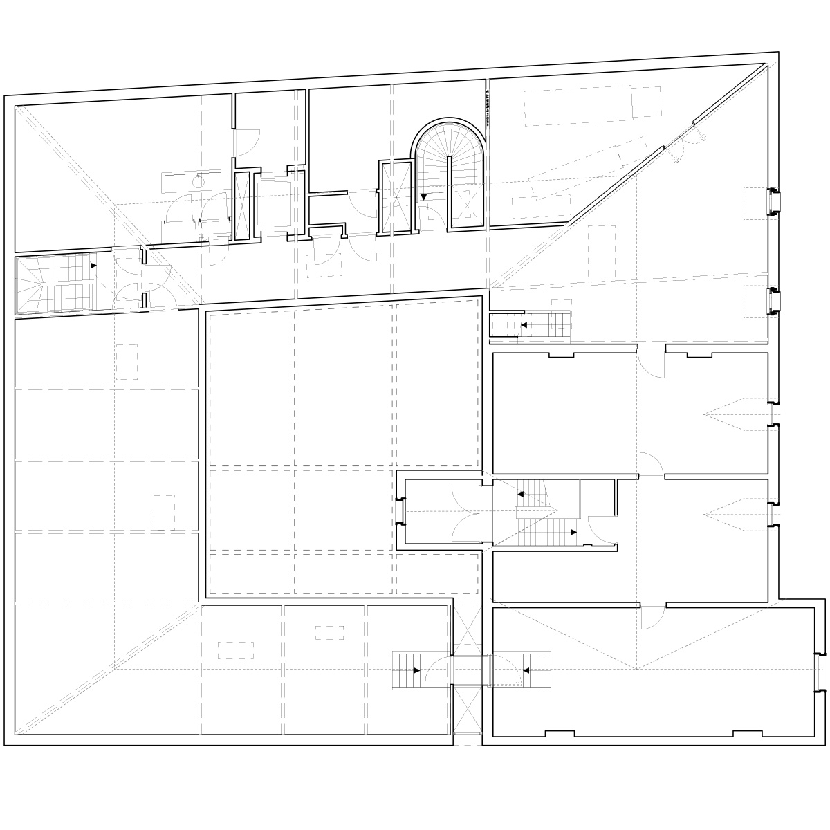
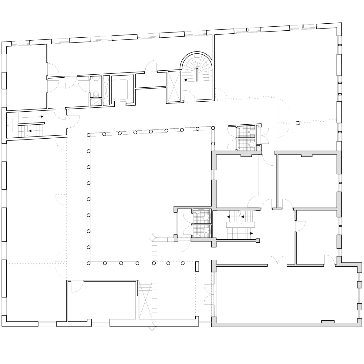
The town hall of the Belgian municipality of Niel was built in 1890 as a residence in Flemish neo-Renaissance style. The building is characterised by brick facades, white sandstone ornaments, stepped gables, dormers and cross windows. After the building was bought by the municipality in 1929 and designated as a town hall, a series of unstructured renovations and extensions followed. At the beginning of the 21st century, the building had to be extended again and solutions were sought to increase the building by a third of its volume.

In the realized design, the existing building is both, the beginning and the end of a compact extension. The house at the end of the row is transformed into an all-sided volume that redefines the relationship between the town hall, the square and the church. The architectural features of the historic façade are implemented in the new building. Each time the building turns the corner, the façade motif becomes more independent and abstract. At the end, a glass joint separates the playful façade design from the undecorated architecture of the original firewall.

Het gemeentehuis van de Belgische gemeente Niel werd in 1890 als woonhuis gebouwd in Vlaamse neorenaissance-stijl. Het gebouw kenmerkt zich door baksteen gevels, witte zandsteen ornamenten, trapgevels, dakkapellen, speklagen en kruisvensters. Nadat het gebouw In 1929 door de gemeente werd gekocht en als gemeentehuis werd bestemd, volgde een serie van ongestructureerde verbouwingen en uitbreidingen. In het begin van de 21te eeuw moest het gebouw opnieuw worden uitgebreid en werden oplossingen gezocht om het bouwvolume met één derde te verruimen.

In het uitgevoerde ontwerp is het bestaande gebouw zowel begin- als eindpunt van een compacte uitbreiding. Het huis aan het einde van een rij wordt omgevormd tot een alzijdig volume dat de verhouding tussen gemeentehuis, plein en kerk opnieuw definieert. De architectonische kenmerken van de historische gevel worden gethematiseerd en in de nieuwbouw overgenomen. Na elke gebouwhoek volgt een verdere verzelfstandiging en abstractie van het gevelmotief. Aan het einde wordt het speelse gevelontwerp door een glazen voeg gesepareerd van de sierloze architectuur van de oorspronkelijke brandwand.

Das Gemeindehaus der belgischen Gemeinde Niel wurde 1890 als Wohnhaus im Stile der flämischen Neorenaissance errichtet. Das vornehmlich traufständige Gebäude kennzeichnet sich durch Backsteinfassaden mit hellen Sandsteinornamenten und -bänderungen, Kreuzfenster, Dachgauben und einen seitlich angeordneten Treppengiebel. Nachdem das Gebäude 1929 durch die Gemeinde erworben und zum Gemeindehaus umgewidmet wurde, folgte eine Reihe unsystematischer Um- und Anbauten. Zu Beginn des 21. Jahrhunderts musste das Gebäude erneut erweitert werden und wurden Lösungsansätze gesucht, um das Bauvolumen um ein Dreifaches zu erweitern.

Das realisierte Konzept macht das ursprüngliche Gebäude zum Anfangs- und Endpunkt eines kompakten Neubaus, der das „Reihenendhaus“ zum allseitigen Baukörper umformt und somit das Verhältnis zwischen Gemeindehaus, Platz und Kirche neu definiert. Im Anschluss an die historische Fassade übernimmt der Neubau deren architektonische Merkmale, um sich in Folge der Fassadenabwicklung von Gebäudeecke zu Gebäudeecke stets weiter zu „verselbstständigen“. Letztlich separiert eine „gläserne Fuge“ die spielerische Fassadensprache des Neubaus von der schmucklosen Architektur der bestehenden Brandwand.