am Molkenmarkt

Am Molkenmarkt

Am Molkenmarkt

Competition

Prijsvraag

Wettbewerb

Berlin, DE Berlijn, DE Berlin, DE
Client: Opdrachtgever: Bauherr:
Wohnungsbaugesellschaft Berlin-Mitte mbH
Project start: Start planontwikkeling: Planungsbeginn:
2025
Total GFA: Totaal BVO: Total BGF:
4.719 m2
In collaboration with: In samenwerking met: In Zusammenarbeit mit:

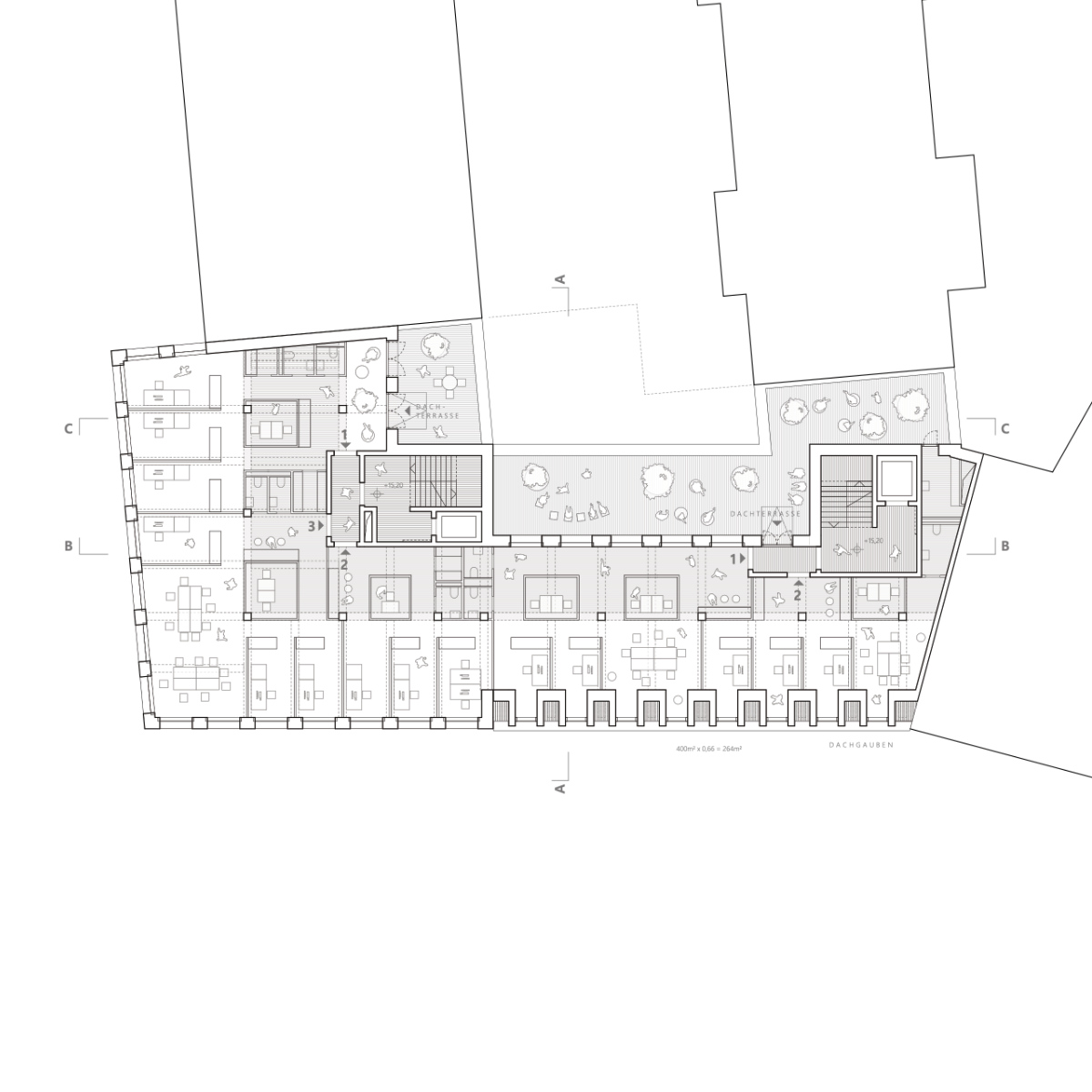
Die beiden Häuser liegen in Block B des zukünftigen Quartiers Molkenmarkt in der historischen Mitte Berlins. Durch die stadträumliche Setzung der Ecke Molkenmarkt-Grunerstraße kommt diesen Häusern eine besondere Bedeutung zu, an einer der prominentesten Ecken des gesamten Quartiers und im Knick der Fassadenflucht am Molkenmarkt, in dem die Sichtachsen vom Mühlendamm und von der Spandauerstraße zusammentreffen. Damit werden beide Häuser im Neuen Stadtquartier maßgeblich in Erscheinung treten und den Stadtraum entscheidend mitprägen.

Doch müssen sich die Häuser trotz Ihrer prominenten Lage auch zu ihrem sehr prägnanten und sehr unterschiedlichen Umfeld verhalten. Die Baudenkmale Rotes Rathaus und Nikolei Viertel erfordern ein angemessenes Gegenüber, dass dem urbanen stadträumlichen Umfeld gerecht wird, die Baudenkmale als solche respektiert und sich ihrem Gegenüber eher untergeordnet positioniert. Unsere Intervention ist damit eine eher schweigsame und versteht sich nicht als primäres Element im Stadtzusammenhang, sondern als ruhige Verflechtung mit dem Stadtgewebe.

Das Eckhaus wird an der Grunerstraße in seiner Höhe zurückgenommen, die Baumasse am Molkenmarkt optimiert. Der symmetrische Aufbau verleiht dem Haus Stabilität und bespielt die Grunerstraße und den Molkenmarkt in gleicher Weise. Die offene Ecke im Erdgeschosse verleiht dem Eckgebäude eine erkennbare Adresse. Die klare Kubatur und Gliederung fügen sich in den Block, ohne sich aus diesem herauszulösen. Das Haus am Molkenmarkt setzt sich, durch die klare Struktur der Ecke, als eigenständiger Baukörper ab. Die Traufkante, das Berliner Dach und der farblich differenzierte Naturstein verleihen dem Haus eine eher klassische Anmutung, die an die historischen Vorbilder am Molkenmarkt anknüpft. Beide Häuser haben eine klar ablesbare eigenen Identität und eine eigene Adresse.

Die beiden Häuser liegen in Block B des zukünftigen Quartiers Molkenmarkt in der historischen Mitte Berlins. Durch die stadträumliche Setzung der Ecke Molkenmarkt-Grunerstraße kommt diesen Häusern eine besondere Bedeutung zu, an einer der prominentesten Ecken des gesamten Quartiers und im Knick der Fassadenflucht am Molkenmarkt, in dem die Sichtachsen vom Mühlendamm und von der Spandauerstraße zusammentreffen. Damit werden beide Häuser im Neuen Stadtquartier maßgeblich in Erscheinung treten und den Stadtraum entscheidend mitprägen.

Doch müssen sich die Häuser trotz Ihrer prominenten Lage auch zu ihrem sehr prägnanten und sehr unterschiedlichen Umfeld verhalten. Die Baudenkmale Rotes Rathaus und Nikolei Viertel erfordern ein angemessenes Gegenüber, dass dem urbanen stadträumlichen Umfeld gerecht wird, die Baudenkmale als solche respektiert und sich ihrem Gegenüber eher untergeordnet positioniert. Unsere Intervention ist damit eine eher schweigsame und versteht sich nicht als primäres Element im Stadtzusammenhang, sondern als ruhige Verflechtung mit dem Stadtgewebe.

Das Eckhaus wird an der Grunerstraße in seiner Höhe zurückgenommen, die Baumasse am Molkenmarkt optimiert. Der symmetrische Aufbau verleiht dem Haus Stabilität und bespielt die Grunerstraße und den Molkenmarkt in gleicher Weise. Die offene Ecke im Erdgeschosse verleiht dem Eckgebäude eine erkennbare Adresse. Die klare Kubatur und Gliederung fügen sich in den Block, ohne sich aus diesem herauszulösen. Das Haus am Molkenmarkt setzt sich, durch die klare Struktur der Ecke, als eigenständiger Baukörper ab. Die Traufkante, das Berliner Dach und der farblich differenzierte Naturstein verleihen dem Haus eine eher klassische Anmutung, die an die historischen Vorbilder am Molkenmarkt anknüpft. Beide Häuser haben eine klar ablesbare eigenen Identität und eine eigene Adresse.

Die beiden Häuser liegen in Block B des zukünftigen Quartiers Molkenmarkt in der historischen Mitte Berlins. Durch die stadträumliche Setzung der Ecke Molkenmarkt-Grunerstraße kommt diesen Häusern eine besondere Bedeutung zu, an einer der prominentesten Ecken des gesamten Quartiers und im Knick der Fassadenflucht am Molkenmarkt, in dem die Sichtachsen vom Mühlendamm und von der Spandauerstraße zusammentreffen. Damit werden beide Häuser im Neuen Stadtquartier maßgeblich in Erscheinung treten und den Stadtraum entscheidend mitprägen.

Doch müssen sich die Häuser trotz Ihrer prominenten Lage auch zu ihrem sehr prägnanten und sehr unterschiedlichen Umfeld verhalten. Die Baudenkmale Rotes Rathaus und Nikolei Viertel erfordern ein angemessenes Gegenüber, dass dem urbanen stadträumlichen Umfeld gerecht wird, die Baudenkmale als solche respektiert und sich ihrem Gegenüber eher untergeordnet positioniert. Unsere Intervention ist damit eine eher schweigsame und versteht sich nicht als primäres Element im Stadtzusammenhang, sondern als ruhige Verflechtung mit dem Stadtgewebe.

Das Eckhaus wird an der Grunerstraße in seiner Höhe zurückgenommen, die Baumasse am Molkenmarkt optimiert. Der symmetrische Aufbau verleiht dem Haus Stabilität und bespielt die Grunerstraße und den Molkenmarkt in gleicher Weise. Die offene Ecke im Erdgeschosse verleiht dem Eckgebäude eine erkennbare Adresse. Die klare Kubatur und Gliederung fügen sich in den Block, ohne sich aus diesem herauszulösen. Das Haus am Molkenmarkt setzt sich, durch die klare Struktur der Ecke, als eigenständiger Baukörper ab. Die Traufkante, das Berliner Dach und der farblich differenzierte Naturstein verleihen dem Haus eine eher klassische Anmutung, die an die historischen Vorbilder am Molkenmarkt anknüpft. Beide Häuser haben eine klar ablesbare eigenen Identität und eine eigene Adresse.